700 BOW LINE DR
NAPLES, FL, 34103
$2,995,000
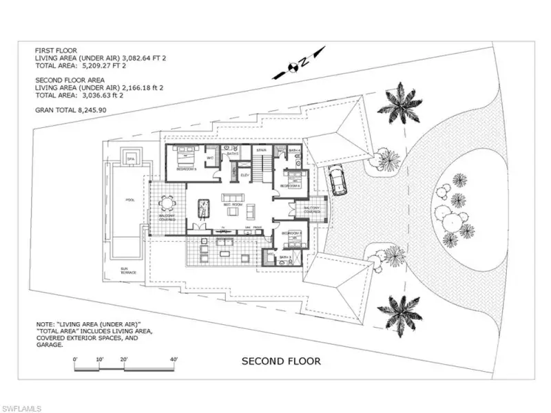
Opportunities to acquire an estate-sized parcel of this caliber in Naples are increasingly rare—particularly one offering both southern and western exposure. Situated on nearly half an acre in the prestigious Moorings neighborhood, this property combines exceptional scale, desirable sunlight, and superior elevation, offering a distinctive opportunity for redevelopment or refinement. Set 12 feet above sea level and located in the X-flood zone, the site exceeds current FEMA and insurance requirements. With no history of flooding and a proven track record of resilience during hurricanes, it provides long-term security that few properties in coastal Naples can match. The setting is quiet, private, and well-positioned—enveloped by mature tropical landscaping and just minutes from Moorings Beach Club, Moorings Golf & Country Club, Fifth Avenue South, and the new Naples Four Seasons Resort. The existing ranch-style residence, built in 1962 and featuring a pool and spa, is offered as-is. Buyers may choose to enjoy the home in its current form, renovate to reflect their preferences, or design and construct a new custom estate befitting this remarkable site. To support redevelopment, conceptual architectural plans are included, offering a thoughtful framework for transforming the property to its full potential. Surrounded by multi-million-dollar custom homes, this parcel represents a rare opportunity to create a lasting legacy in one of Naples’ most established and desirable neighborhoods.
Property Details
Price:
$2,995,000
MLS #:
225068435
Status:
Active
Beds:
3
Baths:
2
Type:
Single Family
Subtype:
Single Family Residence
Subdivision:
MOORINGS
Neighborhood:
moorings
Listed Date:
Sep 15, 2025
Finished Sq Ft:
1,701
Total Sq Ft:
2,113
Lot Size:
20,038 sqft / 0.46 acres (approx)
Year Built:
1962
Schools
Interior
Appliances
Dishwasher, Disposal, Dryer, Microwave, Range, Refrigerator/Freezer, Washer
Bathrooms
2 Full Bathrooms
Cooling
Central Electric
Flooring
Carpet, Tile
Heating
Central Electric
Laundry Features
Laundry in Residence
Exterior
Architectural Style
Ranch, Single Family
Association Amenities
None
Construction Materials
Concrete Block, Stucco
Exterior Features
Outdoor Shower
Parking Features
Attached
Parking Spots
2
Roof
Tile
Security Features
Smoke Detector(s)
Financial
Tax Year
2024
Taxes
$2,874
Mortgage Calculator
Map
Similar Listings Nearby
700 BOW LINE DR
NAPLES, FL















