1079 Diana AVE
NAPLES, FL, 34103
$950,000
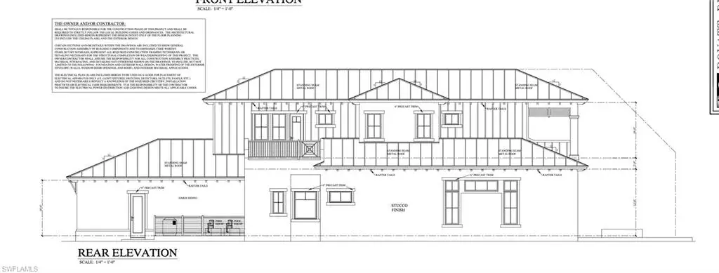
The architectural plans and engineering for a beautiful 4 bed, 4 bath pool home are complete. The lot is cleared, and you can start your build in as little as two weeks from closing! Discover the potential of this prime piece of real estate at 1079 Diana Ave. This expansive lot offers a rare opportunity to build your dream home or investment property in a highly desirable, well-established neighborhood. Just half a mile from the beach, 10 minutes from Mercato, and 5 minutes from downtown, the location is unbeatable. With ample space and no Homeowners Association, you’ve got a number of opportunities to create your own Southwest Florida paradise. Conveniently situated near top-rated schools, parks, and local amenities, this lot provides both ease of access and a true sense of community. Whether you’re envisioning a private oasis or a high-value development, this is your blank canvas. Don’t miss out on this exceptional opportunity to secure land in a sought-after location—act now!
Property Details
Price:
$950,000 / $900,000
MLS #:
225007090
Status:
Closed (Mar 6, 2025)
Beds:
0
Baths:
0
Type:
Land
Subtype:
Residential Lot
Subdivision:
NAPLES TERRACE
Neighborhood:
NAPLES TERRACE
Listed Date:
Feb 3, 2025
Lot Size:
11,326 sqft / 0.26 acres (approx)
Schools
Interior
Exterior
Financial
Tax Year
2023
Taxes
$7,199
Mortgage Calculator
Map
Similar Listings Nearby
1079 Diana AVE
NAPLES, FL








