3123 Ravenna AVE
NAPLES, FL, 34120
$5,350,000
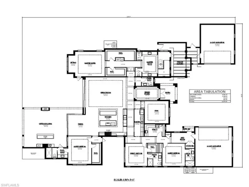
FULLY FURNISHED CAMPANIA MODEL! Seagate Development Group and Theory Design present the professionally designed and furnished Campania Model Home in Silver Oak, one of Seagate’s newest, luxury communities in Naples. This custom home is a collaboration between Seagate Development Group and Theory Design with Architecture by RG Designs, and custom landscape & hardscape design by Outside Productions. Silver Oak, developed by Seagate Development Group, offers exclusive living on 10 expansive Estate homesites, each spanning 1.25 acres. With no homeowner’s association, residents have the freedom to customize their homes and enjoy a superior standard of living. Seagate’s portfolio of companies specialize in custom homes, renovations, interior design, estate management, and land development. Together, bringing exceptional concierge levels of service to everything we do. Photos in this listing contain virtual renderings.
Property Details
Price:
$5,350,000
MLS #:
224092255
Status:
Active
Beds:
4
Baths:
4.5
Type:
Single Family
Subtype:
Single Family Residence
Subdivision:
SILVER OAK NAPLES
Neighborhood:
silveroak
Listed Date:
Nov 15, 2024
Finished Sq Ft:
4,542
Total Sq Ft:
6,575
Lot Size:
54,450 sqft / 1.25 acres (approx)
Year Built:
Schools
Interior
Appliances
Cooktop, Dishwasher, Disposal, Dryer, Freezer, Microwave, Other, Range, Refrigerator, Refrigerator/Freezer, Refrigerator/Icemaker, Washer
Bathrooms
4 Full Bathrooms, 1 Half Bathroom
Cooling
Central Electric
Flooring
Tile
Heating
Central Electric
Laundry Features
Washer/Dryer Hookup
Exterior
Architectural Style
Ranch, Single Family
Association Amenities
None
Construction Materials
Concrete Block, Stucco
Parking Features
Attached
Parking Spots
3
Roof
Tile
Financial
Tax Year
2023
Taxes
$3,545
Mortgage Calculator
Map
Similar Listings Nearby
3123 Ravenna AVE
NAPLES, FL









