1970 Par DR
NAPLES, FL, 34120
$509,000
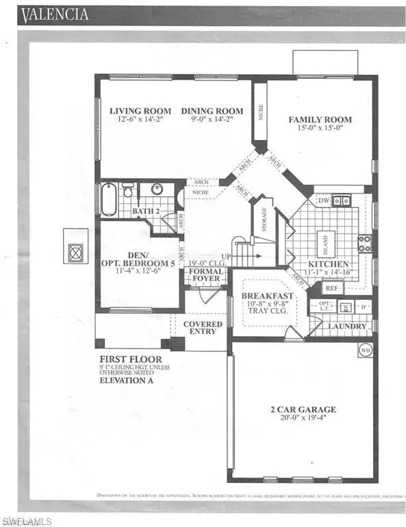
Welcome to your dream home in the esteemed Valencia Country Club, a premier gated community! This exquisite property features four generously sized bedrooms and three opulent bathrooms, ideal for both family living and entertaining guests. Upon entering, you are greeted by a grand foyer with soaring high ceilings, fostering a welcoming ambiance. The open floor plan on the ground level effortlessly blends the living areas, perfect for social gatherings and daily activities. The master bathroom has been beautifully updated and expanded, providing a lavish sanctuary with modern finishes and expansive space. From your own backyard, enjoy the stunning views of the lush golf course, offering a peaceful setting for relaxation. This home also boasts a sizable 3-car garage, providing ample space for vehicles and storage. With excellent amenities and low HOA fees, this property strikes the perfect balance between luxury and affordability. Don’t miss this outstanding opportunity to reside in a notable community.
Property Details
Price:
$509,000
MLS #:
225066361
Status:
Active
Beds:
4
Baths:
3
Type:
Single Family
Subtype:
Single Family Residence
Subdivision:
VALENCIA COUNTRY CLUB
Neighborhood:
valenciacountryclub
Listed Date:
Aug 10, 2025
Finished Sq Ft:
2,864
Total Sq Ft:
2,864
Lot Size:
9,148 sqft / 0.21 acres (approx)
Year Built:
2004
Schools
Interior
Appliances
Electric Cooktop, Dishwasher, Disposal, Dryer, Microwave, Range, Refrigerator/Freezer, Self Cleaning Oven, Washer
Bathrooms
3 Full Bathrooms
Cooling
Ceiling Fan(s), Central Electric, Zoned
Flooring
Carpet, Tile, Wood
Heating
Central Electric
Laundry Features
Laundry in Residence
Exterior
Architectural Style
Two Story, Single Family
Association Amenities
Billiard Room, Clubhouse, Pool, Community Room, Fitness Center, Golf Course, Library, Sidewalk, Streetlight, Theater, Underground Utility
Community Features
Clubhouse, Pool, Fitness Center, Golf, Sidewalks, Street Lights, Gated
Construction Materials
Concrete Block, Stucco
Exterior Features
Balcony, Screened Lanai/Porch
Parking Features
Attached
Parking Spots
3
Roof
Tile
Security Features
Gated Community, Smoke Detector(s)
Financial
HOA Fee
$4,860
Tax Year
2023
Taxes
$2,328
Mortgage Calculator
Map
Similar Listings Nearby
1970 Par DR
NAPLES, FL





























