4230 Skyway DR
NAPLES, FL, 34112
$699,000
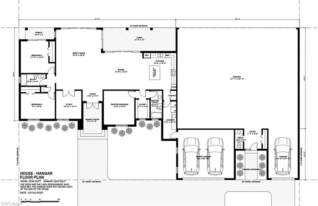
***BRAND NEW PRICE*** ***SELLER FINANCING POSSIBLE!*** Tired of being on a waitlist for a hangar at APF? Interested in acquiring an income-producing asset? Your Dream Aviation or Car Collector Retreat Awaits in Naples, Florida! Discover the perfect canvas for your aviation/car collector lifestyle with this exceptional vacant lot for sale, nestled in the heart of Naples, Florida – and pair it with plans for a new construction home which would allow you to use the hangar and separately rent out the home as an income-producing property! Spanning a generous **0.36 acres** (135′ x 115′), this prime property offers unparalleled access to the skies and the luxury of building your dream home which includes your very own hangar. Key Features: *Runway Access*: Enjoy the convenience of a 4,400′ x 100′ paved and lighted runway with grass overruns. *Direct Taxiway Access*: Seamlessly connect your hangar to the main taxiway. *Transient Ramp*: A large transient ramp with tie-downs awaits your guests, offering them a warm welcome and easy access to your aviation haven.Self-Service Fuel Farm: Benefit from a self-service avgas fuel farm right at your fingertips, minimizing downtime and maximizing your flying experience. CTAF frequency is 122.9 and the FAA Identifier is FA37. Located in a thriving area with a supportive homeowners association featuring good reserves and low dues, this lot provides a unique opportunity to bypass the lengthy waitlists often encountered at Naples (KAPF), Marco Island Executive (KMKY), and Page Field (KFMY). *Beautiful preserve and forest views* from the lot. The adjacent lot is also potentially available for purchase, offering even more possibilities for your aviation dreams.Don’t miss out on this rare opportunity to create your ideal lifestyle in a community that values aviation and luxury living. Plan approval required from HOA. Would also suit a CAR, BOAT or RV LOVER who needs to store prized vehicles. White, sandy beaches, phenomenal shopping all in proximity. Contact us today to learn more and take the first step toward making your dreams a reality! Plans are customizable, get in touch! Francais parle, Deutsch gesprochen.
Property Details
Price:
$699,000
MLS #:
225001630
Status:
Active
Beds:
0
Baths:
0
Type:
Land
Subdivision:
WING SOUTH AIRPARK
Neighborhood:
wingsouthairpark
Listed Date:
Jan 6, 2025
Lot Size:
15,682 sqft / 0.36 acres (approx)
Schools
Interior
Exterior
Association Amenities
See Remarks
Community Features
Gated
Security Features
Gated Community
Financial
Tax Year
2023
Taxes
$2,318
Mortgage Calculator
Map
Similar Listings Nearby
4230 Skyway DR
NAPLES, FL


















